温州某高层住宅楼防水工程施工方案
1.编制依据
1、GB50208-2002《地下防水工程质量验收规范》
2、GB50207-2002《屋面工程质量验收规范》
3、GB50108-2001《地下工程防水技术规范》
4、施工图纸
5、施工组织设计
2.工程概况
××城11~16号楼工程位于龙湾行政中心区E-04 地块,由温州市××有限公司筹建,温州市××研究院设计,温州市××地质勘察,温州市××建设监理有限公司监理,由温州××建设集团有限公司总承建施工。总建筑面积50455m2(其中地下室9170m2)。地下一层,地上12层,均为现浇钢筋混凝土框架结构。
该工程防水有地下室、屋面等。屋面为Ⅱ级防水、二道设防。设计要求如下:
(1)地下室防水做法
1)地下室顶板防水见“自编地1”、“自编地2”。
2)地下室外侧壁防水见“外壁1”。节点参见国标“住宅建筑构造”图集[03J930-1]116页节点①。
3)地下室底板防水见“自编地3”。节点参见国标“住宅建筑构造”图集[03J930-1]116页节点①。
4)消防水池池底、内壁基层喷涂郑州赛诺建材的MD改性聚合物防水涂料两遍。
5)地下室顶板以上、0.000m以下砖墙,两侧1:2.5水泥砂浆掺防水剂粉刷。
| 自编地1 | 覆土植被地面 |
| 1.植被(另定) | |
| 2.轻质混合营养土种植层(厚度另定) | |
| 3.玻璃纤维布过滤层 | |
| 4.200mm厚粗砂、卵石排水层(卵石粒径小于60) | |
| 5.40mm厚C25细石混凝土(内配ф4@150钢筋),3000mm×3000mm分格(缝宽20mm,油膏嵌缝,顶粘贴250mm宽防水卷材) | |
| 6.10mm厚1:4灰砂浆防护隔离层 | |
| 7.1.5mm厚合成高分子卷材防水层 | |
| 8.2mm厚合成高分子涂膜防水层 | |
| 9.15mm厚水泥砂浆找平层 | |
| 10.现浇钢筋混凝土地下室顶板(S6自防水混凝土) | |
| 自编地2 | 混凝土室外地面 |
| 1.120mm厚C25混凝土(内配ф10@200钢筋)6000mm×6000mm分格(缝宽20mm,油膏嵌缝)。 | |
| 2.碎石矿碴填实 | |
| 3.40mm厚C25细石混凝土(内配Ф10@200钢筋),3000×3000分格(缝宽20,油膏嵌缝,顶粘贴250mm宽防水卷材) | |
| 4.10mm厚1:4灰砂防护隔离层 | |
| 5.1.5mm厚合成高分子卷材防水层 | |
| 6.2mm厚合成高分子涂膜防水层 | |
| 7.15mm厚1:3水泥砂浆找平层 | |
| 8.现浇钢筋混凝土地下室顶板(S6自防水混凝土) | |
| 自编地3 | 底板防水 |
| 1.现浇钢筋混凝土地下室底板(S6自防水混凝土) | |
| 2.40mm厚C25细石混凝土保护层 | |
| 3.10mm厚1:4灰砂浆防护隔离层 | |
| 4.1.5mm厚合成高分子卷材防水层 | |
| 5.2mm厚合成高分子涂膜防水层 | |
| 6.15mm厚1:3水泥砂浆找平层 | |
| 7.100mm厚C15混凝土垫层 | |
| 8.150mm厚片石夯实 | |
| 外壁1 | 外侧壁防水 |
| 1.现浇钢筋混凝土地下室外侧壁(S6自防水混凝土) | |
| 2.15mm厚1:3水泥砂浆找平层 | |
| 3.1.5mm厚合成高分子卷材防水层 | |
| 4.2mm厚合成高分子涂膜防水层 | |
| 5.100mm厚保护墙,陶粒混凝土砌块,M5水泥砂浆砌筑(砌法见图集03J930-1中119页) | |
| 6.回填土 | |
(2)卫生间、阳台、厨房防水。卫生间、阳台、厨房楼地面粉刷中掺郑州赛诺建材的YYM渗透剂,其中卫生间周边墙体下部设150mm高、宽度同墙厚的素混凝土(标号同楼板)挡水坎,卫生间墙面(180mm高)粉刷中YYM渗透剂。
(3)屋面防水(具体部位详见平面图注明,找坡未注明者均为建筑找坡)
| 屋1 | Ⅱ级防水,二道设防(倒置式防水屋面) |
| 1.40mm厚C20细石混凝土刚性保护层,内配Φb4@200钢丝网,分格缝间距不大于4000,缝宽20,与女儿墙间留30宽缝,嵌密封材料。 | |
| 2.25mm厚挤塑聚苯乙烯泡沫板状保温层,上塑料膜或油毡一层。 | |
| 3.1.5mm厚合成高分子卷材防水层 | |
| 4.2mm厚合成高分子涂膜防水层 | |
| 5.15mm厚1:3水泥砂浆找平层 | |
| 6.C20加气混凝土找坡,坡度2%(最薄处不小于30mm) | |
| 7.现浇钢筋混凝土屋面板 | |
| 屋2 | Ⅱ级防水,二道设防 |
| 1.40mm厚C20细石混凝土刚性保护层,内配Φb4@200钢丝网,分格缝间距不大于4000,缝宽20,与女儿墙间留30宽缝,嵌密封材料。 | |
| 2.空铺单层卷材隔离层(或纸筋灰隔离层) | |
| 3.1.5mm厚合成高分子卷材防水层 | |
| 4.2mm厚合成高分子涂膜防水层 | |
| 5.1:3水泥砂浆找坡,坡度见平面图 | |
| 6.现浇钢筋混凝土屋面板 | |
3.合成高分子卷材防水层施工
(1)主要规定。
1)搭接规定。相邻卷材接头部位须错开50cm以上,且两层卷材不得相互垂直铺贴。
2)铺设规定。卷材铺贴时沿东西方向开始铺贴,铺贴时先平面后立面。
3)附加层。管根、转角处阴阳角等部位须增加一层附加层,宽度为50mm。
(2)施工准备
1)材料及要求。合成高分子卷材,经国家建筑材料测试中心检测,各项指标均符合国家标准(GB18173.1—2006):断裂拉伸强度为53~60N/cm,撕拉强度指数20~28N,低温弯折≤—20度,对折无裂纹,不透水性指标为0.3mpa30min不渗漏。
合成高分子卷材熔融温度高,如何使合成高分子卷材与无纺布表面层复合,是该产品的技术关键。且其产品生产过程无毒、无害、属绿色环保产品。
2)主要用具。
①基层处理用具:高压吹风机、平铲、钢丝刷、笤帚。
②材料容器:大小铁桶。
③弹线用具:量尺、小线、色粉袋。
④裁剪卷材用具:剪刀。
⑤涂刷用具:滚刷、油刷、压辊,刮板。
3)作业条件。
①铺贴防水层的基层表面应平整光滑,须将基层表面的异物、砂浆疙瘩和其他尘土杂物清除干净,不得有空鼓、开裂及起砂、脱皮等缺陷。
②基层应保持干燥、含水率应不大于9%;阴阳角处应做成圆弧形。
③防水层所用材料多属易燃品,存放和操作应隔绝火源,做好防火工作。
(3)操作工艺
1)工艺流程:基层清理 →底胶配制→涂刷底胶→特殊部位进行增补处理(附加层)→卷材粘贴面涂胶基层表面涂胶→铺贴防水卷材作保护层
2)基层清理:施工前将验收不合格的基层上杂物、尘土清扫干净。
3)底胶配制:按比例配合,搅拌均匀即可进行涂刷施工。
4)涂刷底胶:在大面积涂刷施工前,先在阴角、管根等复杂部位均匀涂刷一遍;然后用长把滚刷大面积顺序涂刷,涂刷底胶厚度要均匀一致,不得有露底现象。涂刷的底胶经4h干燥,手摸不粘时,即可进行下道工序。
5)特殊部位增补处理。
①增补剂涂膜:涂膜防水材料可在地面、墙体的管根、伸缩缝、阴阳角部位,均匀涂刷一层涂膜,作为特殊防水薄弱部位的附加层,涂膜固化后即可进行下一工序。
②附加层施工:设计要求特殊部位,如阴阳角、管根,用卷材铺贴一层处理。
6)铺贴卷材防水层。
①铺贴前在基层面上排尺弹线,作为掌握铺贴的标准线,使其铺设平直。
②基层表面涂胶:底胶干燥后,在清理干净的基层面上,用长把滚刷胶均匀涂刷,涂刷面不宜过大,然后晾胶。
③卷材粘贴:在基层面已涂刷好胶的前提下,将片材用ф30mm、长1.5m 的圆心棒(圆木或塑料管)卷好,由二人抬至铺设端头,注意用线控制,位置要正确,粘结固定端头,然后沿弹好的标准线向另一端铺贴,操作时卷材不要拉太紧,并注意方向沿标准线进行,以保证卷材搭接宽度。卷材不得在阴阳角处接头,接头处应间隔错开。操作中的排气应注意每铺完一张卷材,立即用干净的滚刷从卷材的一端开始横向用力滚压一遍,以便将空气排出。滚压时在排除空气后,为使卷材粘结牢固,应用外包橡皮的铁辊滚压一遍。卷材搭接的长边与端头的短边100mm 范围,用丁基胶粘剂粘结;将胶配合搅拌均匀,用毛刷蘸丁基胶粘剂,涂于搭接卷材的两个面,待其干燥15~30min 即可进行压合,挤出空气,不许有皱折,然后用铁辊滚压一遍。凡遇有卷材重叠三层的部位,须用聚氯酯嵌缝膏填密封严。防水层周边用聚氨酯嵌缝,并在其上涂刷一层聚氨酯涂膜。
7)保护层。防水层做完后,应按设计要求做好保护层,一般平面为水泥砂浆或细石混凝土保护层;立面为砌筑保护墙或抹水泥砂浆保护层,外做防水层可贴有一定厚度的板块保护层。抹砂浆的保护层应在卷材铺贴时,表面涂刷聚氨酯涂膜稀撒石碴,以利保护砂浆层粘结。防水层施工不得在雨、风天气进行,施工的环境温度不得低于5℃。
(4)质量标准。
1)主控项目。卷材与胶结材料须符合设计和施工及验收规范的规定。检查产品出厂合格证、试验资料的技术性能指标,现场取样试验。卷材防水层及变形缝、预埋管根等细部特殊部位做法,须经工程验收,使其符合设计要求和施工及验收规范的规定。
2)一般项目。
①卷材防水层的基层应牢固;平整,阴阳角处呈圆弧形或钝角,表面洁净;底胶涂刷均匀,无漏涂、透底;检查隐蔽工程验收记录。
②卷材防水层的铺贴构造和搭接、收头粘贴牢固严密,无损伤、空鼓等缺陷。
③卷材防水层的保护层应符合设计要求的做法。
(5)成品保护。
1)已铺贴好的卷材防水层,加强保护措施,从管理上保证不受损坏。
2)穿过墙体的管根,施工中不得碰撞变位。
3)防水层施工完成后,应及时做好保护层。
(6)应注意的质量问题。
1)接头处卷材搭接不良:接头搭接形式以及长边、短边的搭接宽度偏小,接头处的粘结不密实、空鼓、接槎损坏;操作应按程序、弹标准线,使与卷材规格相符,施工中齐线铺贴,使卷材搭接长边不小于100mm,短边不小于150mm。
2)空鼓:铺贴卷材的基层潮湿,不平整、不洁净,易产生基层与卷材间空鼓;卷材铺设空气排除不彻底,也可使卷材间空鼓。注意施工时基层应充分干燥,卷材铺设层间不能窝住空气。刮大风时不宜施工,因在凉胶时易粘上砂尘而造成空鼓。
3)管根处防水层粘贴不良:在这种部位施工应仔细操作、清理应干净,铺贴卷材不得有张嘴、翘边、折皱等问题。
4)转角处渗漏水:转角处不易操作,面积较大。施工时注意留槎位置,保护好留槎卷材,使搭接满足规定的宽度
(7)质量记录。
本工艺标准应具备以下质量记录:
1)防水卷材应有产品合格证,现场取样复试资料。
2)胶结材料应有出厂产品合格证、使用配合比资料。
3)隐蔽工程检查验收资料及质量检验评定资料。
4.高分子涂膜防水层施工
(1)施工准备
1)材料及要求。
①高分子防水涂膜,应具有出厂合格证及厂家产品的认证文件,并复验以下技术性能。高分子防水涂膜技术性能指标如下:
固体含量: ≥93% 抗拉强度: ≥0.6MPa
延伸率: ≥300% 低温柔度:在-20℃绕φ20mm 圆棒无裂纹
耐热度: 80℃不流淌 不透水性:>0.2MPa 干燥时间: 1~6h
②辅助材料:
磷酸:用于做缓凝剂。
二月桂酸二丁基锡:用于做促凝剂。
二甲苯或醋酸乙酯:用于稀释和清洗工具。
水泥:P.O.32.5 号普通硅酸盐水泥,用于配制水泥砂浆抹保护层。
中砂:圆粒中砂,粒径2~3mm,含泥不大于3%;用于配制水泥砂浆抹防护层。
2)主要机具:
①电动机具:电动搅拌器。
②手用工具:搅拌桶、小铁桶、小平铲、塑料或橡胶刮板、滚动刷、毛刷、弹簧秤、消防器材等。
3)作业条件:
①防水层高分子涂膜冷作业施工,在地下水位较高的条件下涂刷防水层前,应先降低地下水位,做好排水处理,使地下水位降至防水层操作标高以下300mm,并保持到防水层施工完。
②涂刷防水层的基层应按设计抹好找平层,要求抹平、压光、坚实平整,不起砂,含水率低于9%,阴阳角处应抹成圆弧角。
③涂刷防水层前应将涂刷面上的尘土、杂物,残留的灰浆硬块,有突出的部分处理、清扫干净。
④涂刷涂膜不得在淋雨的条件下施工,施工的环境温度不应低于5℃,操作时严禁烟火。
(2)操作工艺
1)工艺流程:
基层清理 →涂刷底胶→涂膜防水层施工→做保护层。
2)基层处理:涂刷防水层施工前,先将基层表面的杂物、砂浆硬块等清扫干净,并用干净的湿布擦一次,经检查基层无不平、空裂,起砂等混凝土缺陷,方可进行下道工序。
3)涂刷底胶(相当于冷底子油)。
①底胶(基层处理剂)配制:先将聚氨酯甲料、乙料和二甲苯以1∶1.5∶2 的比例(重量比)配合搅拌均匀,配好的料在2h 内用完。
②底胶涂刷:将配制好的底胶料,用长把滚刷均匀涂刷在基层表面,涂刷量为0.3kg/m2 左右,涂刷后约4h 手感不粘时,即可做下道工序。
4)涂膜防水层施工。
①材料配制:聚氨酯按甲料、乙料和二甲苯以1∶1.5∶0.3 的比例(重量比)配合,用电动搅拌器强制搅拌3~5min,至充分拌和均匀即可使用。配好的混合料应2h 内用完,不可时间过长。
②附加涂膜层:穿过墙、顶、地的管根部,地漏、排水口、阴阳角,变形缝并薄弱部位,应在涂膜层大面积施工前,先做好上述部位的增强涂层(附加层)。附加涂层做法:是在涂膜附加层中铺设玻璃纤维布,涂膜操作时用板刷刮涂料驱除气泡,将玻璃纤维布紧密地粘贴在基层上,阴阳角部位一般为条形,管根为块形,三面角,应裁成块形布铺设,可多次涂刷涂膜。
③涂刷第一道涂膜:在前一道涂膜加固层的材料固化并干燥后,应先检查其附加层部位有无残留的气孔或气泡,如没有,即可涂刷第一层涂膜;如有气孔或气泡,则应用橡胶刮板将混合料用力压入气孔,局部再刷涂膜,然后进行第一层涂膜施工。涂刮第一层聚氨酯涂膜防水材料,可用塑料或橡皮刮板均匀涂刮,力求厚度一致,在1.5mm 左右,即用量为1.5kg/m2。
④涂刮第二道涂膜:第一道涂膜固化后,即可在其上均匀地涂刮第二道涂膜,涂刮方向应与第一道的涂刮方向相垂直,涂刮第二道与第一道相间隔的时间一般不小于24h,亦不大于72h。
⑤涂刮第三道涂膜:涂刮方法与第二道涂膜相同,但涂刮方向应与其垂直。
⑥稀撒石碴:在第三道涂膜固化之前,在其表面稀撒粒径约2mm的石碴,加强涂膜层与其保护层的粘结作用。
5)涂膜保护层。最后一道涂膜固化干燥后,即可根据建筑设计要求的适宜形式,一般抹水泥泵浆。平面可浇筑细石混凝土保护层。
(3)质量标准
1)主控项目。涂膜防水材料性能须符合设计和有关标准规定。并有产品合格证、试验报告。涂膜防水层及其局部应加强的变形缝、预埋管件处、阴阳角部位的做法,须符合设计要求和施工规范的规定,不得渗漏水。
2)一般项目
①涂膜防水的基层应牢固,表面洁净,密实平整,阴阳角呈圆弧形,底胶涂层应均匀,无漏涂。
②附加涂膜层的涂刷方法、搭接、收头应按设计要求,粘结须牢固,接缝封闭严密,无损伤、空鼓等缺陷。
③涂膜防水层、涂膜厚度均匀、粘结牢固严密,不允许有脱落、开裂、孔眼、涂刷压接不严密的缺陷。
④涂膜防水层表面不应有积水和渗水的现象。保护层不得有空鼓、裂缝、脱落的现象。
(4)成品保护。
1)穿过墙体的管根、预埋件、变形缝处,涂膜施工时不得碰损、变位。
2)已涂好的涂膜未固化前,不允许上人和堆积物品,以免涂膜防水层受损坏,造成渗漏。
(5)应注意的质量问题。
1)气孔、气泡;材料搅拌方式及搅拌时间未使材料拌和均匀;施工时应采用功率、转速不过高的搅拌器。另一个原因是基层处理不洁净,做涂膜前应仔细清理基层,不得有浮砂和灰尘,基层上更不应有孔隙,涂膜各层出现的气孔应按工艺要求处理,防止涂膜破坏造成渗漏。
2)起鼓:基层有起皮、起砂、开裂、不干燥,使涂膜粘结不良;基层施工应认真操作、养护,待基层干燥后,先涂底层涂料,固化后,再按防水层施工工艺逐层涂刷。
3)涂膜翘边:防水层的边沿、分项刷的搭接处,出现同基层剥离翘边现象。主要原因是基层不洁净或不干燥,收头操作不细致,密封不好,底层涂料粘结力不强等造成翘边。故基层要保证洁净、干燥,操作要细致。
4)破损:涂膜防水层分层施工过程中或全部涂膜施工完,未等涂膜固化就上人操作活动,或放置工具材料等,将涂膜碰坏、划伤。施工中应保护涂膜的完整。
(6)质量记录。
1)涂膜防水层应有产品合格证、现场取样复试资料。
2)隐蔽工程检验资料及质量检查评定资料。
5.季节性施工
(1)须严格控制基层含水率,当基层含水率不大于9%时方可进行施工。
(2)施工时间选在上午8:00至下午17:00之间,避开早晨和晚间潮气的影响;同时加快施工进度,缩短工期,避免天气的突然变化。
(3)施工期间如突遇寒流袭击或雨雪天气,立即停止施工,并对已施工完毕的防水层及基层进行保护。
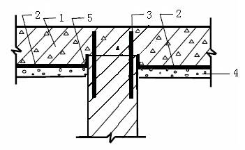
6.细部做法
1、底板防水层与基础桩根部衔接节点处理(图1)。
1)结构底板;
2)防水层;
3)桩基钢筋;
4)垫层混凝土;
5)节点过渡措施。

图1衔接节点处理示意
1—结构底板;2—防水层;3—桩基钢筋;4—垫层混凝土;5—节点过渡措施
桩根部间隙设置20~30遇水膨胀腻子条,高分子防水涂膜涂刷,再整体铺高分子防水卷材。
(2)底板与外侧砖胎模转角处构造。防水层从底板垫层转向外砌块模板墙立面,在转角位置的防水层存在由于地层产生相对沉降位移,使建筑物与外模墙不同步沉降,而与防水层产生磨擦拉伸,损伤防水层,致使地下水窜到结构薄弱处而渗漏。转角做法见图2。

图2转角处做法
外墙与底板结合部位的水平施工缝留设在高于底板300mm 处并按图纸要求设置。高低跨及积水坑、电梯井转角部位做加厚层(图3)。

图3高低跨处防水做法
? 郑州赛诺建材为具有丰富的跨国公司服务背景的资深工程技术团队建立。公司团队秉承先进的技术理念,勇于创新,创造性的解决了系列工程难题。集团持续研发新型工程材料及工艺设备,提供混凝土,砖石结构的,防火,保温,隔热,防水,防腐,渗水,加固及工业地坪的咨询,施工,维护一体化服务,以很高的性价比,创造性的解决了很多工程难题,受到工程界的普遍欢迎。
赛诺技术的最大特点是:与众不同。开发理念是敢为天下先,人无我有,人有我优,人优我更优。
郑州赛诺建材,专业工程水密封技术20年,电话:400-0371-713.www.sainuogroup.com








